Ingatlan kereső – további

Dr. Rohács Andrea

Ár: 35 500 000 Ft
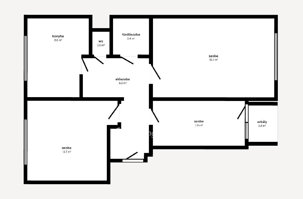
Alapterület: 61 m²
Szobaszám: 3
Város: Miskolc
Környék: Győri kapu
Típus: lakás
Építés éve: 1973
Ingatlan állapot: Átlagos
Falazat: panel
Fűtés: Távfűtés
Emelet: 1
Erkély: igen
Lift: igen
Parkolás: Közterületen ingyenes
Referenciaszám: M317297

Eladásra kínálunk Miskolcon a belvárostól 5 perc távolságra, a Kőporos utcában egy 61 nm-es, 2+1 félszobás , első emeleti jó állapotú távhős lakást.

Az ingatlanban redőnnyel felszerelt műanyag nyílászárók kerültek beszerelésre, HI-SEC bejárati ajtóval egyetemben.

Mind a meleg vízről, mind pedig az otthon melegéről távhő gondoskodik, ami egy felújított fürdőszobában még tovább tudja növelni a komfortérzetet.

Az ingatlan jó elhelyezkedésének, valamint elosztásának köszönhetően befektetőknek, fiatal pároknak, illetve családosoknak egyaránt ideális választás lehet.

Jöjjön és tekintsük meg együtt, ebben az ingatlanban nem fog csalódni.

Az OTP Ingatlanpont teljes körű ügyintézéssel áll az eladók és a vevők rendelkezésére!
Banki hátterünknek köszönhetően kedvezményes hitel, 3%-os Otthon Start Hitel, CSOK Plusz, Falusi CSOK, Babaváró ügyintézéssel segítem ügyfeleimet.
Az adásvételi szerződés megkötéséhez igény szerint megbízható ügyvédi közreműködést biztosítunk és segítséget nyújtunk az adásvételhez kapcsolódó ügyek intézéséhez.

Hasonló ingatlanok betöltése...